Quadrilocale in vendita

Frosinone, Via Pozzillo - Frosinone Centro
€ 50.000
4 locali 4 locali
110 Mq 110 Mq
1 bagno 1 bagno

Quadrilocale in vendita

Frosinone, Via Pozzillo - Frosinone Centro

Descrizione annuncio

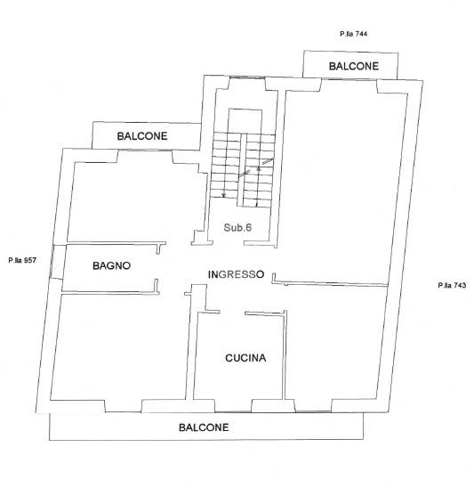
A Frosinone, in via Pozzillo, proponiamo un appartamento al secondo piano di circa 105 mq, particolarmente luminoso e ben distribuito. L’immobile è composto da tre camere, un ampio salone e una cucina separata, con affacci esterni valorizzati da più balconi che garantiscono luce naturale durante tutto l’arco della giornata. È inoltre disponibile un terrazzo ad uso condominiale, ideale come spazio aggiuntivo per momenti proprietà è completata da un comodo garage e dispone di infissi in doppio vetro. L’appartamento si presenta da ristrutturare e rifinire, offrendo un grande potenziale di valorizzazione e personalizzazione degli ambienti. Grazie alla metratura, alla posizione e alle caratteristiche strutturali, rappresenta una soluzione interessante sia come abitazione principale sia come investimento, con ottime prospettive di rendimento nel tempo.

Mostra tutto

Nelle vicinanze

Trasporto pubblico Trasporto pubblico
Frosinone
Frosinone
2,7 Km
p.zza De Matthaeis
p.zza De Matthaeis
1,4 Km
Tiburtina
Tiburtina
1,6 Km
Stazione Superiore
Stazione Superiore
810 m
Stazione Inferiore
Stazione Inferiore
930 m
Scuole Scuole
Scuole
290 m
Liceo Classico Turrizziani
390 m
Istituto Magistrale Statale "F.lli Maccari"
410 m
Università di Frosinone
720 m
Accademia Delle Belle Arti
790 m
Farmacia Farmacia
Farmacia Del Corso Frosinone Alta
410 m
Farmacia Sorda
470 m
Farmacia Centrale
690 m
Farmacia Piacitelli
1,2 Km
Farmacia De Matthaeis
1,4 Km
Ospedali Ospedali
Ex Ospedale Umberto Primo
900 m
Pronto Soccorso Ospedale Spaziani
2,6 Km
Ospedale Spaziani
2,8 Km
Supermercati Supermercati
Conad
470 m
NaturaSì
1,3 Km
Todis
1,3 Km
Lidl
1,6 Km
Supermercato
2,1 Km
Negozi Negozi
Monsignor
420 m
Forno di Calabresi Antonio
700 m
Zed
1,1 Km
Jacoboni 401 Srl
1,2 Km
OVS
1,2 Km
Bar Bar
Cafe Noir
360 m
Bar Betto
460 m
Elleti
490 m
Amnesia
590 m
Bar "Le Terrazze"
640 m
Ristoranti Ristoranti
Piz-Up
370 m
Cacio e Pere
450 m
Ristorante "Da Plinio"
470 m
Al Pepe Rosa
500 m
Pizzeria "Al Grottino"
500 m
Mostra tutto

Caratteristiche

Rif.:
61173394
Piano:
2 di 3 (Piano alto)
Box:
1
Posti auto:
1
Balconi:
2
Terrazzi:
1
Mostra tutto
Prezzo Prezzo
€ 50.000
Rata mutuo Rata mutuo
€ 238 / mese
Spese annue Spese annue
€ 100
Proponi il tuo prezzoProponi il tuo prezzo

Classe Energetica

G
G
G
G
G
G
G
G
G
EP globale non rinnovabile:
565.00 kW h/m² anno
EP globale rinnovabile:
565.00 kW h/m² anno
EP invernale del fabbricato:
EP estiva del fabbricato:
Anno di costruzione:
1960
Riscaldamento:
Autonomo
Tipo impianto:
A radiatori
Tipo alimentazione:
Metano

Ti interessa visionare l'immobile?

Fissa un appuntamento  Fissa un appuntamento

Richiedi informazioni

Clicca su Leggi per aprire l'informativa
* Questi campi sono obbligatori

Calcola il tuo mutuo

Semplice e senza impegno
Anticipo

( % )
Mutuo

( % )

pochi semplici passi

inserisci i tuoi dati
Questionario completato
Grazie per aver richiesto un appuntamento senza impegno con un nostro Consulente del Credito e Assicurativo.

Hai inserito correttamente tutti i dati necessari e a breve riceverai una e-mail con un link da convalidare per inviare i tuoi dati.
Affiliato
Gr Immobiliare Srl
Via Aldo Moro, 237 03100 Frosinone (FR)

Il nostro staff


  • Gianni Roscioli
    Affiliato
Via Aldo Moro, 237 03100 Frosinone (FR)
Zona: Frosinone Bassa
Mostra su mappa
Orari: Dal lunedì al venerdì ore 9.00-13.00/15.30-19.30; sabato ore 9.00-13.00
Affiliato
Gr Immobiliare Srl
Via Aldo Moro, 237 03100 Frosinone (FR)

2026 Tecnocasa Franchising S.p.A. - P. IVA 08365160152 - Via Monte Bianco 60/A 20089 Rozzano (MI). Ogni agenzia ha un proprio titolare ed è autonoma. Privacy policy | Policy utilizzo | Cookie policy